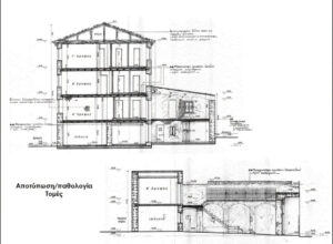
Τις οριστικές μελέτες για την «Δημιουργική επανάχρηση του κτιρίου Β.Ε.Βασιλά» που έχουν λάβει όλες τις απαραίτητες εγκρίσεις από τις υπηρεσίες του Υπουργείου Πολιτισμού, καθώς και τα σχετικά τεύχη δημοπράτησης παρέλαβε το Δημοτικό Συμβούλιο Πάργας. Ο Δήμος Πάργας πλέον προχωρά στην άμεση δημοπράτηση του έργου αναστύλωσης του ιστορικού κτιρίου με εξασφαλισμένους πόρους 1.150.000 €, που θα το σώσει από τον κίνδυνο κατάρρευσης και θα αποδώσει στην πόλη ένα πολυχώρο, ο οποίος θα αποτελέσει ένα κύτταρο πολιτισμού.



Αξίζει να σημειωθεί ότι οι πρώτες μελέτες για το κτίριο αυτό, είχαν ξεκινήσει από το τέλος της δεκαετίας του 90, χωρίς να έχουν λάβει καμία από τις απαραίτητες εγκρίσεις με αποτέλεσμα, το έργο να έχει τελματώσει. Μετά από την ανάδειξη αναδόχου από μειοδοτικό διαγωνισμό και έπειτα από μια επίπονη διαδικασία με συνεχή επικοινωνία και συνεργασία του Δήμου, των μελετητών, της Υπηρεσίας Νεότερων Μνημείων Ηπείρου και του Υπουργείου Πολιτισμού, οι μελέτες έλαβαν την έγκριση του Κεντρικού Συμβουλίου Νεότερων Μνημείων.
in Πρέβεζα
Έτοιμο για δημοπράτηση το έργο αναστύλωσης του κτιρίου Βασιλλά στην Πάργα
